Carella Norte

Blanco Encalada

Unidades funcionales de 2, 3 y 4 ambientes con cocheras en Villa Urquiza.

Cover image for Blanco Encalada

Ubicación: Blanco Encalada, Villa Urquiza, Buenos Aires
Pisos: 10
Departamentos por piso: 2
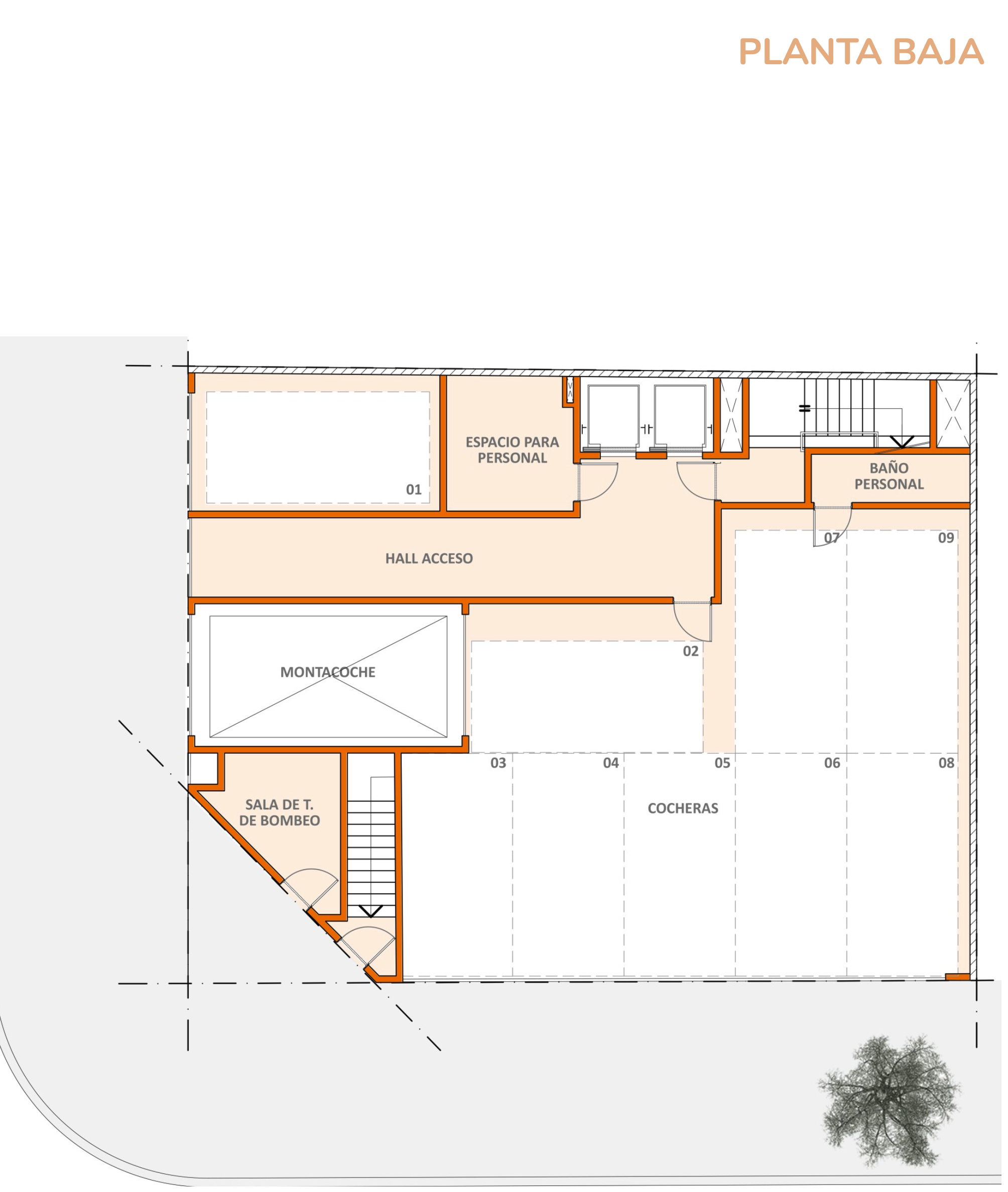
Cocheras: 10

El proyecto

El diseño arquitectónico de este edificio se erige sobre la premisa de la simplicidad y la armonía con la naturaleza. Se basa en formas geométricas simples que se amalgaman armoniosamente con el entorno circundante, generando una estética minimalista que permite que la naturaleza sea la protagonista. La fachada, predominantemente transparente, ofrece vistas ininterrumpidas del paisaje desde el interior, creando una sensación de continuidad y borrando los límites entre el interior y el exterior, realzando así la relación entre el espacio construido y el entorno natural. Como así también, la elección de los materiales empleados y la paleta de color se inspira en las texturas y tonalidades presentes en el contexto circundante, facilitando una transición fluida y orgánica entre el edificio y el paisaje.

Las unidades

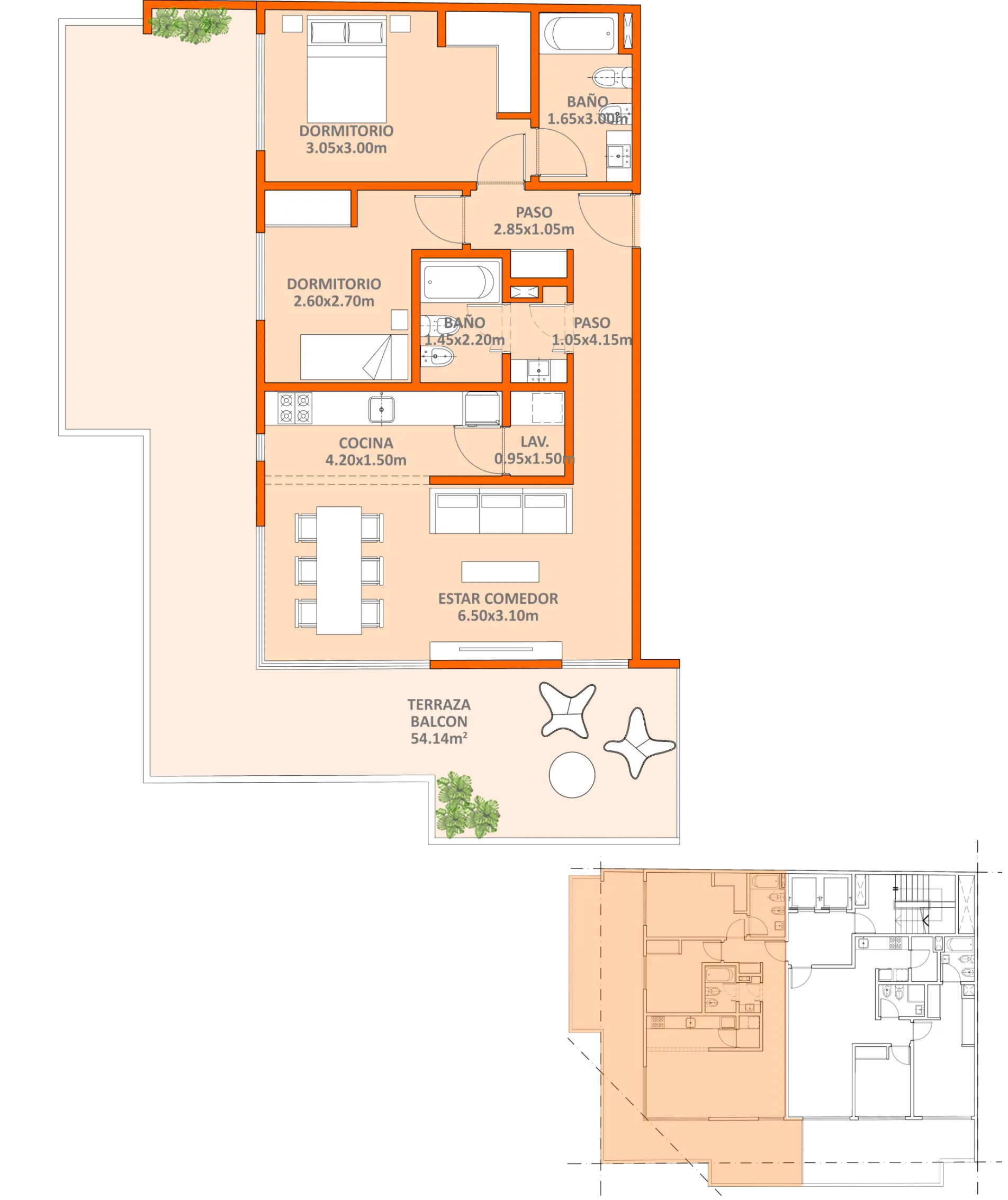
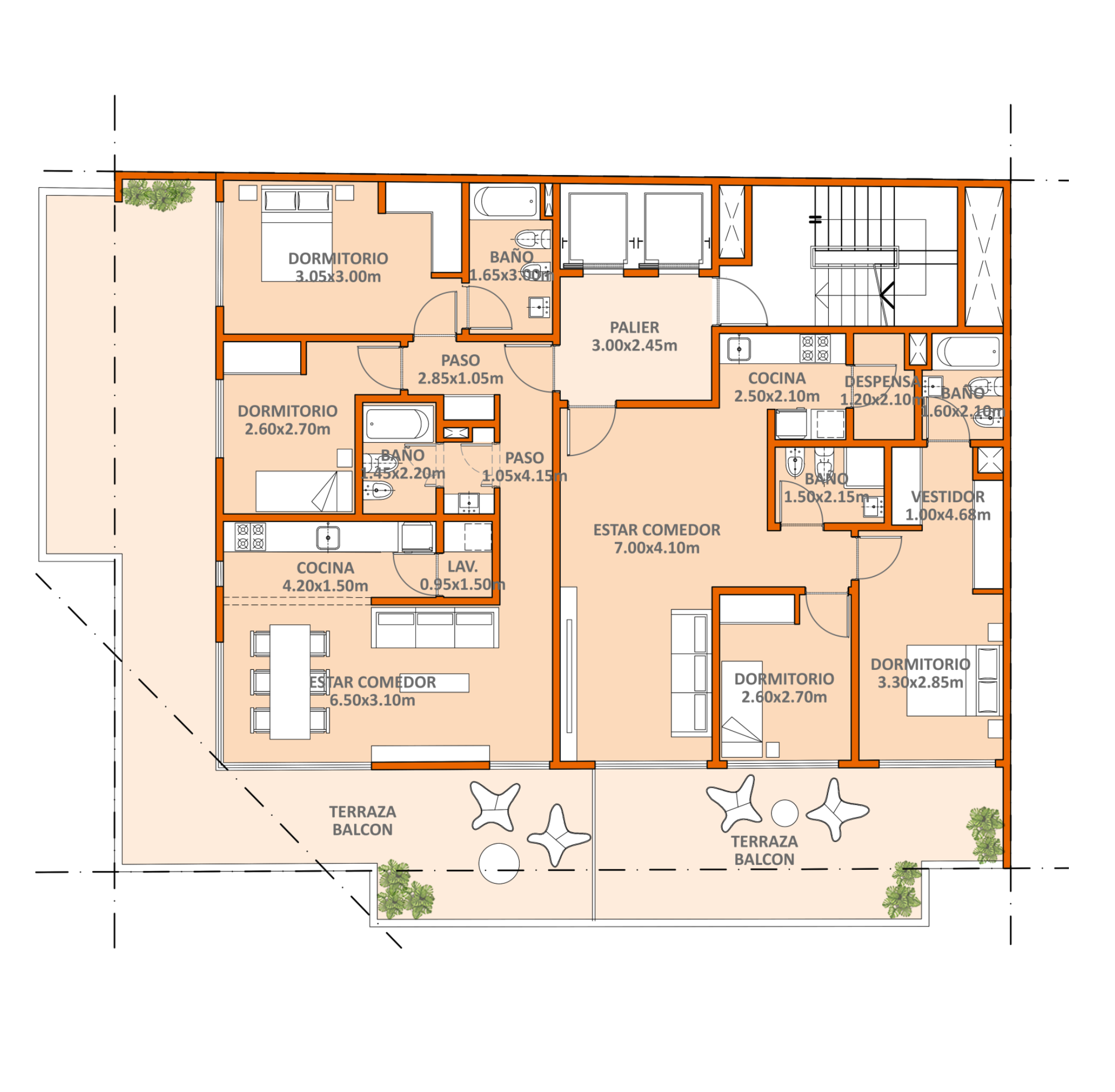
Amplias unidades con variedad de ambientes, cuenta con pisos tipo SPC, cielorrasos de hormigón visto, carpinterías exteriores en aluminio línea A30 color negro, mesadas en granito, bajo mesada en melamina color, bacha de cocina en acero inoxidable, anafe 4 hornallas y horno a gas, instalación sanitaria con cañerías termofusionadas, instalación eléctrica bajo normas IRAM, balcones con piso y zócalo de porcelanato y preinstalación de cañerías y desagües para equipos de aire acondicionado.

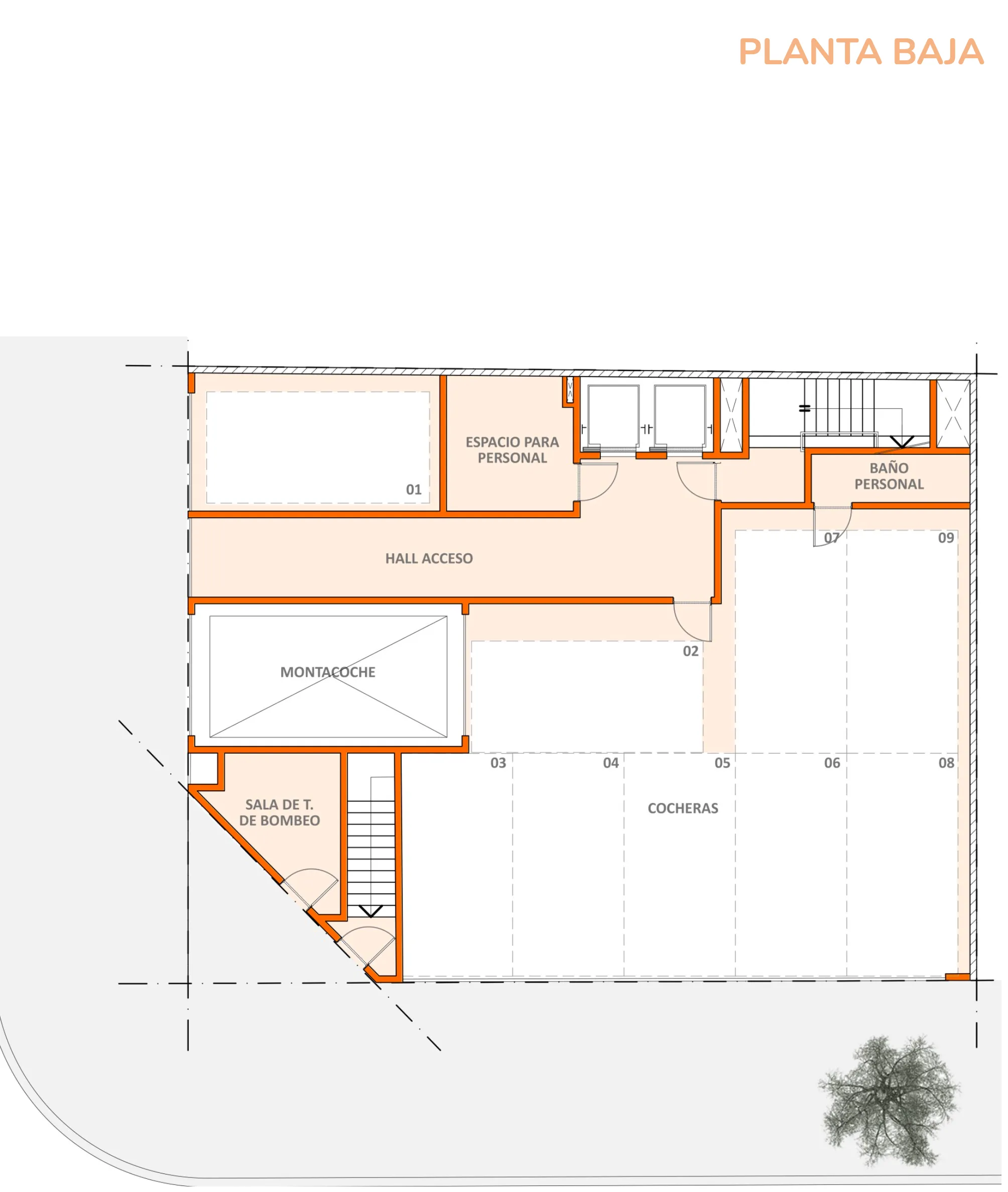
Subsuelo y Planta Baja

Planta Tipo 1° a 7° Piso

Planta Tipo 8° Piso

Planta Tipo 9° Piso

Cuatro Ambientes con Balcón

Unidades: 1A, 2A, 3A, 4A , 5A, 6A, 7A
Superficie cubierta: 84,73 m2
Superficie semicubierta: 14,32 m2
Superficie total: 99,05 m2

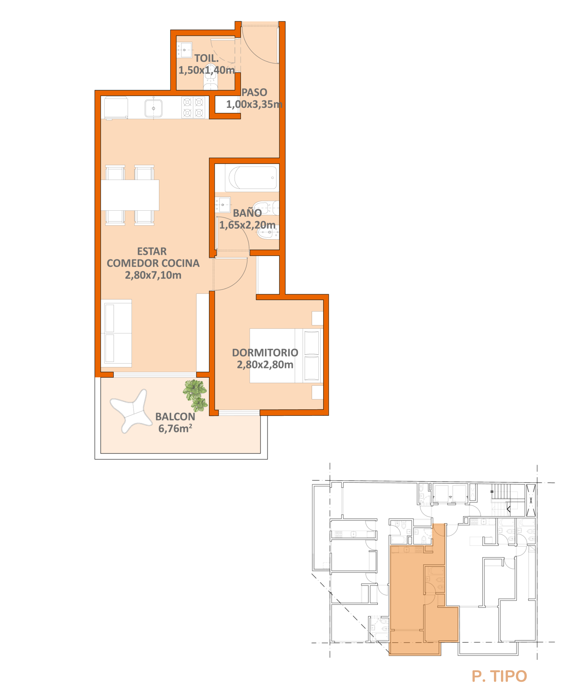
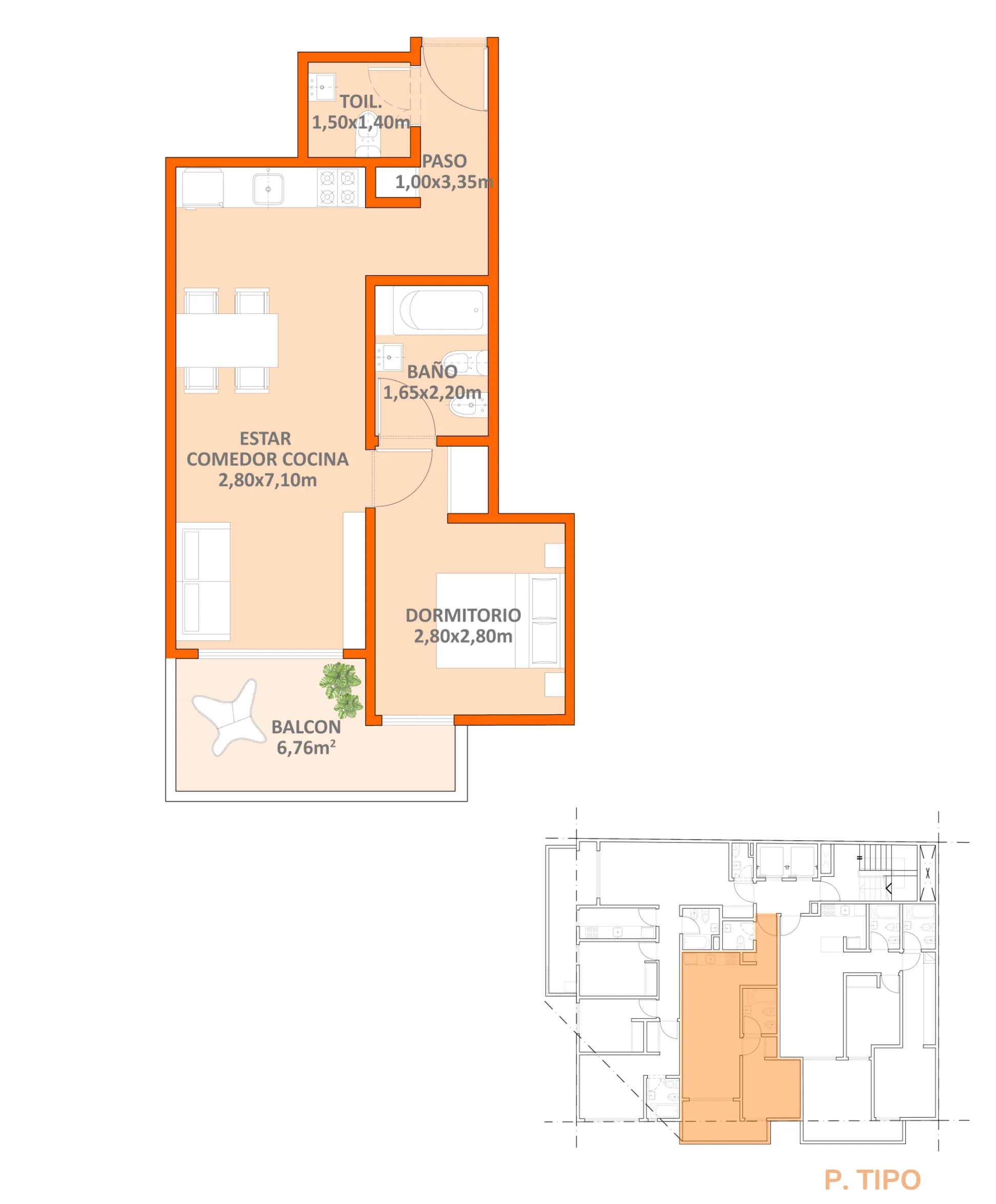
Dos Ambientes con Balcón

Unidades: 1B, 2B, 3B, 4B, 5B, 6B, 7B
Superficie cubierta: 44,86 m2
Superficie semicubierta: 7,83 m2
Superficie total: 52,69m2

Tres Ambientes con Balcón-Terraza

Unidades: 1C, 2C, 3C, 4C, 5C, 6C, 7C
Superficie cubierta: 69,32m2
Superficie semicubierta: 15,91 m2
Superficie total: 85,23 m2

Tres Ambientes con Terraza

Unidades: 8A
Superficie cubierta: 79,53 m2
Superficie descubierta: 58,65 m2
Superficie total: 138,18 m2

Tres Ambientes con Terraza

Unidades: 8B
Superficie cubierta: 73,92 m2
Superficie descubierta: 23,93 m2
Superficie total: 97,85 m2

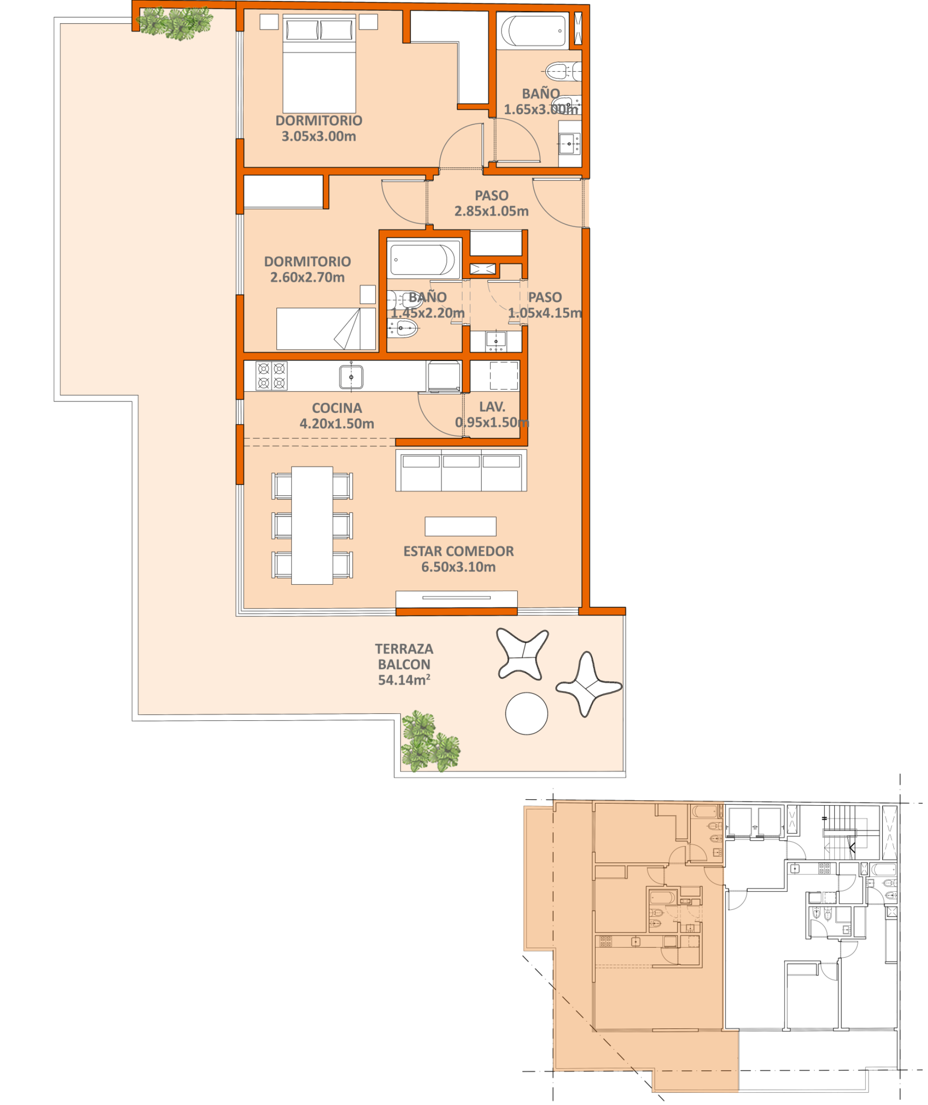
Cuatro Ambientes con Terraza

Unidades: 9A
Superficie cubierta: 104,90 m2
Superficie descubierta: 51,06 m2
Superficie total: 155,96 m2

Tabla de Superficies

# Tipología Orientación Cubierta Semicubierta Descubierta Sup Total
1A 4 AMB FRENTE 84.73 14.32 - 99.05
1B 2 AMB FRENTE 44.86 7.83 - 52.69
1C 3 AMB FRENTE 69.32 15.91 - 85.23
2A 4 AMB FRENTE 84.73 14.32 - 99.05
2B 2 AMB FRENTE 44.86 7.83 - 52.69
2C 3 AMB FRENTE 69.32 15.91 - 85.23
3A 4 AMB FRENTE 84.73 14.32 - 99.05
3B 2 AMB FRENTE 44.86 7.83 - 52.69
3C 3 AMB FRENTE 69.32 15.91 - 85.23
4A 4 AMB FRENTE 84.73 14.32 - 99.05
4B 2 AMB FRENTE 44.86 7.83 - 52.69
4C 3 AMB FRENTE 69.32 15.91 - 85.23
5A 4 AMB FRENTE 84.73 14.32 - 99.05
5B 2 AMB FRENTE 44.86 7.83 - 52.69
5C 3 AMB FRENTE 69.32 15.91 - 85.23
6A 4 AMB FRENTE 84.73 14.32 - 99.05
6B 2 AMB FRENTE 44.86 7.83 - 52.69
6C 3 AMB FRENTE 69.32 15.91 - 85.23
7A 4 AMB FRENTE 84.73 14.32 - 99.05
7B 2 AMB FRENTE 44.86 7.83 - 52.69
7C 3 AMB FRENTE 69.32 15.91 - 85.23
8A 4 AMB FRENTE 79.53 - 58.65 138.18
8B 4 AMB FRENTE 73.92 - 23.93 97.85
9A 5 AMB FRENTE 104.90 - 51.06 155.96
TOTALES 1650.72 266.42 133.64 2050.78
Superficie Cubierta
1650.72 m²
Superficie Semicubierta
266.42 m²
Superficie Total
2050.78 m²

La presente documentación tiene carácter comercial y orientativo. Dado que el proyecto se encuentra en proceso de desarrollo el mismo puede sufrir modificaciones debido a necesidades arquitectónicas, normativas municipales y/u otros motivos